Miscellaneous Steel Detailing

From Stairs to Platforms — We Detail the Framework of Functionality

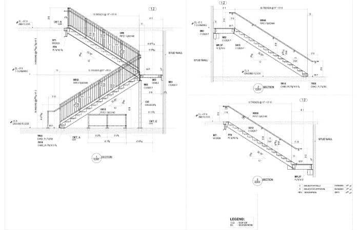
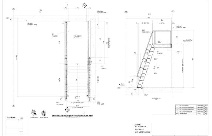
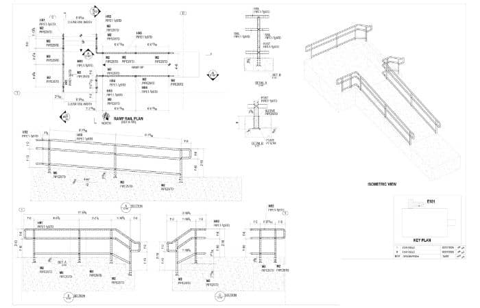
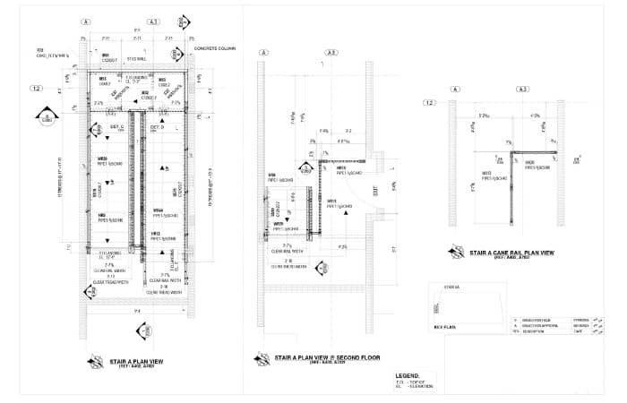
Our portfolio spans structural steel elements such as complex staircases, hand-railings and other intricate steel construction items. We understand the detailing needs from a fabrication point of view and execute comprehensive drawings that conform to your unique requirements. Using the latest 3D modeling tools that are in compliance with the AISC code, No job is too small and no part is too specialized for our team of detailers.

Detailing of non-structural steel components such as stairs, handrails, ladders, and platforms, ensuring full coordination with architectural and structural disciplines.

Service Highlights

Egress Stairs (Switch Back/Box Stairs/Scissor Stairs) with Railing

Safety Gates

Ship Ladders

Platform Grating/Checkered Plate

Platform Guardrails

Dumpster Gate

Industrial Access Stairs with Railing

Bollards

Ladders & Embeds

Scroll to Top